L-1816 Piso en venta en Puerto de Pollença
Gran apartamento de 250 m2 en la primera línea de…
1,950,000€
Comprar
7,200,000€















Piso de lujo reformado en venta en Calle Velázquez barrio de Salamanca Madrid
Ubicado en una de las zonas más exclusivas de la capital, este piso de lujo reformado en venta en Calle Velázquez barrio de Salamanca Madrid ofrece una combinación perfecta entre elegancia clásica y comodidades modernas. Situado en un edificio señorial de 1918 con estilo clásico, esta vivienda se encuentra completamente reformada (última reforma en 2025), lista para entrar a vivir.
Características destacadas de la vivienda
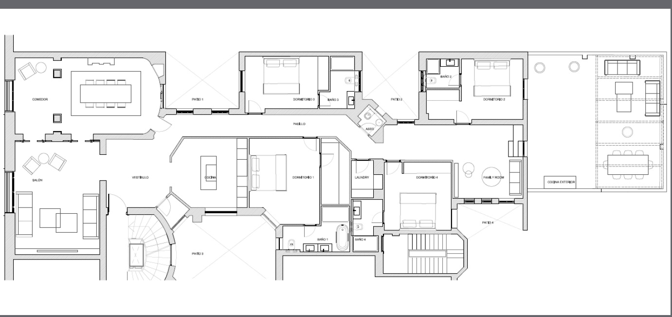
Con una superficie construida de 307 m² y 280 m² útiles, este amplio piso exterior cuenta con 4 dormitorios, 4 baños completos y un aseo de cortesía. Su distribución funcional incluye salón de 40 m², comedor independiente de 15 m² y una cocina de 20 m² con office. Además, dispone de una espectacular terraza de 55 m² ideal para disfrutar del aire libre en pleno centro de Madrid.
El inmueble ofrece un ambiente luminoso gracias a su orientación este y su ubicación exterior. Las calidades de los acabados son sobresalientes: suelos de tarima en salón, dormitorios y cocina, cerámicos en los baños, paredes lisas, carpintería exterior de PVC y carpintería interior lacada. Todo el conjunto refleja un diseño actual y elegante.
Comodidades y servicios del edificio
El edificio cuenta con ascensor, montacargas, portero físico durante 8 horas al día y acceso a trastero. La finca dispone de portal en buen estado y planos disponibles. La calefacción es individual por gas y el aire acondicionado está instalado por conductos. Además, el piso cuenta con entrada de servicio, lo que aporta mayor funcionalidad y privacidad.
El piso está completamente amueblado, lo que permite una mudanza sin complicaciones. La comunidad no tiene derramas actualmente y los gastos de I.B.I. están exentos.
Entorno privilegiado: barrio de Salamanca
El barrio de Salamanca es una de las zonas más cotizadas de Madrid, conocido por sus elegantes avenidas, tiendas de lujo, restaurantes de alta gama y edificios históricos. La Calle Velázquez, donde se sitúa el inmueble, es una de las arterias más prestigiosas de la ciudad. Este barrio fue concebido en el siglo XIX y es símbolo de la aristocracia madrileña. Más información sobre el Barrio de Salamanca en Wikipedia.
Además, su excelente comunicación mediante transporte público y la cercanía a zonas verdes, como el Parque del Retiro, hacen de esta vivienda una opción inmejorable para quienes buscan lujo, espacio y ubicación privilegiada.
Ideal para familias o inversores
Este inmueble es perfecto para familias que deseen vivir en una zona segura, tranquila y de alto nivel, pero también representa una gran oportunidad de inversión en el mercado inmobiliario de lujo de Madrid, donde la demanda de este tipo de propiedades sigue siendo alta.
¿Por qué elegir este piso?
Te invitamos a conocer más contenidos sobre el mercado inmobiliario de lujo en nuestro blog de Inmogil Gestión.
En definitiva, si estás buscando un piso de lujo reformado en venta en Calle Velázquez barrio de Salamanca Madrid, esta propiedad reúne todas las condiciones para convertirse en tu próximo hogar o inversión.
INMOGIL no cobra honorarios al comprador, por lo que el precio reflejado es el real. INMOGIL GESTIÓN, OTRA FORMA DE HACER LAS COSAS!
OTRAS INMOBILIARIAS de Lujo![]() A10 Inmobiliaria: Liderazgo y Compromiso en el Horizonte NavarroLa historia de A10 Inmobiliaria es el relato de una evolución constante hacia la excelencia en el servicio al cliente. Fundada con la visión de profesionalizar el mercado inmobiliario en el norte de España, esta firma ha sabido posicionarse como el referente absoluto en Navarra gracias a una metodología de trabajo propia y un equipo humano altamente especializado. Su trayectoria está marcada por la gestión de los activos residenciales más exclusivos de la capital, desde áticos de diseño en el Primer Ensanche hasta las villas señoriales de las urbanizaciones periféricas. A diferencia de las agencias convencionales, A10 nació con una vocación de consultoría 360º, donde el marketing inmobiliario de vanguardia y el asesoramiento jurídico se funden para garantizar transacciones de éxito en el segmento prime. Lo que verdaderamente distingue a A10 en el mercado actual es su pertenencia a las redes internacionales más prestigiosas, lo que les permite conectar el producto local con inversores de todo el mundo. Su éxito radica en haber construido una reputación basada en la transparencia radical y en un conocimiento quirúrgico de los barrios de Pamplona. Han sido pioneros en introducir herramientas tecnológicas como el home staging virtual y el big data para optimizar el valor de las propiedades que gestionan. Para esta inmobiliaria, el lujo no es solo una cifra, sino la tranquilidad que siente el cliente al saber que su patrimonio está en manos de expertos que valoran la discreción, la ética y la eficacia por encima de todo, consolidándose como el aliado indispensable en la Comunidad Foral. El Primer Ensanche de Pamplona: La Cuadrícula del Prestigio NavarroSi existe un lugar que personifica la elegancia histórica y el estatus en la provincia de Navarra, ese es sin duda el Primer Ensanche de Pamplona. Diseñado a principios del siglo XX tras el derribo parcial de las murallas, este distrito fue concebido para albergar a la alta burguesía navarra, lo que se traduce en un urbanismo ortogonal de avenidas amplias y fachadas monumentales de piedra. Vivir aquí es residir en el corazón de una ciudad que combina el orden suizo con la calidez mediterránea, en un entorno donde los edificios de estilo ecléctico y modernista definen un estándar de vida superior, rodeado de instituciones históricas y jardines impecables. Las ventajas de vivir en el centro de Pamplona son excepcionales para quienes valoran la calidad de vida y la seguridad. A diferencia de otras capitales, Pamplona ofrece un entorno extremadamente limpio, seguro y con una infraestructura sanitaria y educativa que se sitúa a la cabeza de España. La proximidad a la Ciudadela, el gran pulmón verde de la ciudad, permite disfrutar de la naturaleza y el deporte al aire libre en un entorno fortificado único en Europa. Además, la oferta gastronómica, basada en la excelencia de la huerta navarra, y la vibrante vida cultural que rodea a la Plaza del Castillo, convierten el día a día en una experiencia de primer nivel. Es un entorno estable, donde el lujo se manifiesta en la nobleza de los materiales de sus fincas señoriales y en la posibilidad de disfrutar de una vida urbana sofisticada con la serenidad de una ciudad que siempre ha sabido cuidar su patrimonio. Señorío y Modernidad frente al Parque de la TaconeraComo ejemplo de la selecta cartera de A10 Inmobiliaria, destaca este espectacular piso de 220 m² en pleno Ensanche. La propiedad cuenta con una reforma de diseño que integra elementos originales con tecnología domótica, 4 dormitorios en suite y grandes ventanales con vistas despejadas. Se encuentra disponible por 2.100.000 euros. |
Gran apartamento de 250 m2 en la primera línea de…
1,950,000€
Portal Inmobiliario de Lujo en Bons Aires, presenta piso de…
995,000€
Portal Inmobiliario de Lujo en Puerto Banús, presenta piso de…
6,700,000€
This bright and spacious penthouse apartment is located in a…
2,150,000€