L-1619 Ático en venta en Recoletos
LuxHOME vende ático para reformar en su totalidad con terraza…
2,725,000€
Comprar
1,490,000€













La vivienda se encuentra en reforma, fotos de otro proyecto de similares características. Se entrega amueblado y decorada.
¡Visitas disponibles a partir del 24 de mayo!
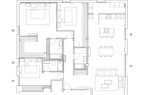
Maravilloso piso ubicado en la prestigiosa zona de Bernabéu-Hispanoamérica, en el distrito de Chamartín. Con una generosa superficie de 197 m², de la prestigiosa firma Velzia, esta impresionante residencia se destaca por su diseño moderno y sus amplios espacios.
En su distribución consta de un amplio salón que se integra con una cocina abierta y totalmente equipada, creando un ambiente contemporáneo, con tres dormitorios y tres baños completos, en su zona de descanso, proporcionando comodidad y privacidad para toda la familia.
Equipado con aire acondicionado y calefacción central con contadores individuales, lo que garantiza un clima agradable durante todo el año. Su orientación Sur permite disfrutar de una excelente luminosidad y calidez, creando un ambiente acogedor en todas las estaciones. Además, el apartamento incluye dos plazas de garaje para mayor comodidad y una piscina comunitaria, perfecta para relajarse y disfrutar del aire libre en los días calurosos.
Con una ubicación privilegiada cerca del estadio Santiago Bernabéu y con excelentes conexiones tanto en transporte público como privado y rodeado de todos los servicios necesarios, amplia oferta cultural, gastronómica, turística etc. con comercios, restaurantes, parques y centros educativos de prestigio.
Ofrece una vida de lujo y comodidad en uno de los barrios más exclusivos de Madrid, distrito residencial, que ofrece una combinación única de elegancia, modernidad y comodidad.
La arquitectura es principalmente contemporánea, con edificios bien conservados y modernas infraestructuras.
El ambiente en esta zona es tranquilo y familiar, con calles arboladas y espacios verdes que invitan a pasear y disfrutar del aire libre. Además, la presencia del estadio Santiago Bernabéu agrega un toque de emoción y dinamismo, especialmente durante los días de partido.
The property is currently undergoing renovation; photos from another project with similar features are available. It will be delivered furnished and decorated.
Visits available starting from May 24!
Wonderful apartment located in the prestigious area of Bernabéu-Hispanoamérica, in the Chamartín district. With a generous area of 197 m², from the prestigious Velzia firm, this impressive residence stands out for its modern design and spaciousness.
Its layout consists of a spacious living room integrated with an open and fully equipped kitchen, creating a contemporary atmosphere, with three bedrooms and three full bathrooms in its sleeping area, providing comfort and privacy for the whole family.
Equipped with air conditioning and central heating with individual meters, ensuring a pleasant climate throughout the year. Its south orientation allows you to enjoy excellent brightness and warmth, creating a cozy atmosphere in all seasons. Additionally, the apartment includes two parking spaces for added convenience and a communal swimming pool, perfect for relaxing and enjoying the outdoors on hot days.
With a privileged location near the Santiago Bernabéu stadium and excellent connections both by public and private transport and surrounded by all necessary services, a wide range of cultural, gastronomic, tourist etc. offerings with shops, restaurants, parks, and prestigious educational centers.
It offers a life of luxury and comfort in one of Madrid’s most exclusive neighborhoods, a residential district that offers a unique combination of elegance, modernity, and comfort. The architecture is mainly contemporary, with well-preserved buildings and modern infrastructure.
The atmosphere in this area is quiet and family-friendly, with tree-lined streets and green spaces that invite you to stroll and enjoy the outdoors. Additionally, the presence of the Santiago Bernabéu stadium adds a touch of excitement and dynamism, especially during match days.
OTRAS INMOBILIARIAS de Lujo![]() Homerun Real Estate: La Nueva Era de la Consultoría Inmobiliaria en la Costa del SolLa trayectoria de Homerun Real Estate es el reflejo de una visión moderna y dinámica del mercado de lujo en el sur de España. Fundada por Eric Ebbing, esta firma nació con el propósito de romper con los moldes de las agencias tradicionales, apostando por una combinación de marketing digital de vanguardia y un conocimiento exhaustivo de los proyectos de obra nueva más disruptivos. Su historia está ligada al auge del "Triángulo de Oro", donde han sabido posicionarse como el socio estratégico de inversores internacionales que buscan propiedades con un diseño arquitectónico superior y un alto potencial de revalorización. Para esta firma, el éxito reside en la hiper-especialización y en ofrecer un servicio de acompañamiento que va mucho más allá de la simple transacción, actuando como verdaderos gestores de estilo de vida. Lo que distingue a Homerun Real Estate en el ecosistema actual es su enfoque en la experiencia del cliente y la selección curada de su cartera. No se limitan a listar propiedades; analizan cada activo bajo criterios de sostenibilidad, domótica y calidad de materiales. Su éxito radica en haber construido una marca que resuena con una nueva generación de compradores que valoran la eficiencia y la estética minimalista. Para esta inmobiliaria, el lujo en la provincia de Málaga se define por la integración del entorno natural con espacios de vida abiertos y luminosos, consolidándose como la agencia de referencia para quienes buscan la seguridad de una inversión sólida en villas contemporáneas y complejos residenciales de última generación. Estepona: El Jardín del Mediterráneo y su Nueva Milla de OroSi existe un lugar que personifica la transformación y el crecimiento ordenado en la provincia de Málaga, ese es el municipio de Estepona. En los últimos años, esta localidad ha pasado de ser un tranquilo enclave marinero a convertirse en uno de los destinos más codiciados de Europa bajo el concepto de "el jardín de la Costa del Sol". Vivir en Estepona, y especialmente en su expansión hacia el oeste o en la zona de Selwo, es disfrutar de una calidad de vida que equilibra el encanto de su casco antiguo peatonal con el despliegue de infraestructuras de lujo de primer nivel. Es el refugio ideal para quienes buscan el clima mediterráneo en un entorno que apuesta por la baja densidad y los espacios verdes. Las ventajas de residir en Estepona frente a otros núcleos cercanos son su planificación urbanística moderna y su amplia oferta de ocio saludable. La zona ofrece kilómetros de playas galardonadas, paseos marítimos de nueva planta y una seguridad envidiable. A diferencia de las áreas más masificadas, aquí el lujo se manifiesta en la amplitud de las parcelas y en la proximidad a algunos de los mejores clubes de golf y parques naturales de la provincia. La excelente conectividad con Marbella y el aeropuerto de Málaga, sumada a una oferta educativa internacional creciente, convierten a Estepona en el enclave estratégico para familias y perfiles cosmopolitas. Es un entorno donde la inversión inmobiliaria es extremadamente resiliente, ofreciendo una vida marcada por la luz, el deporte al aire libre y la exclusividad de residir en el nuevo polo de atracción del lujo en el sur de España. Arquitectura Contemporánea en la Zona de SelwoComo ejemplo de la excelente cartera de Homerun Real Estate, destaca esta espectacular villa de diseño de 446 m² situada en una parcela de 1.000 m². La propiedad cuenta con 4 dormitorios, piscina infinita y acabados de altísima gama en un entorno de máxima privacidad. Se encuentra disponible por 2.395.000 euros. |
LuxHOME vende ático para reformar en su totalidad con terraza…
2,725,000€
Portal Inmobiliario de Lujo en Sant Martí, presenta piso de…
2,200,000€
Portal Inmobiliario de Lujo en Las Chapas, presenta dúplex de…
1,800,000€
ESTUPENDO piso totalmente exterior muy luminoso con terraza en finca…
1,195,000€ 1,260,000€